LES ACACIAS
Sur plan - 5 pièces aux Acacias
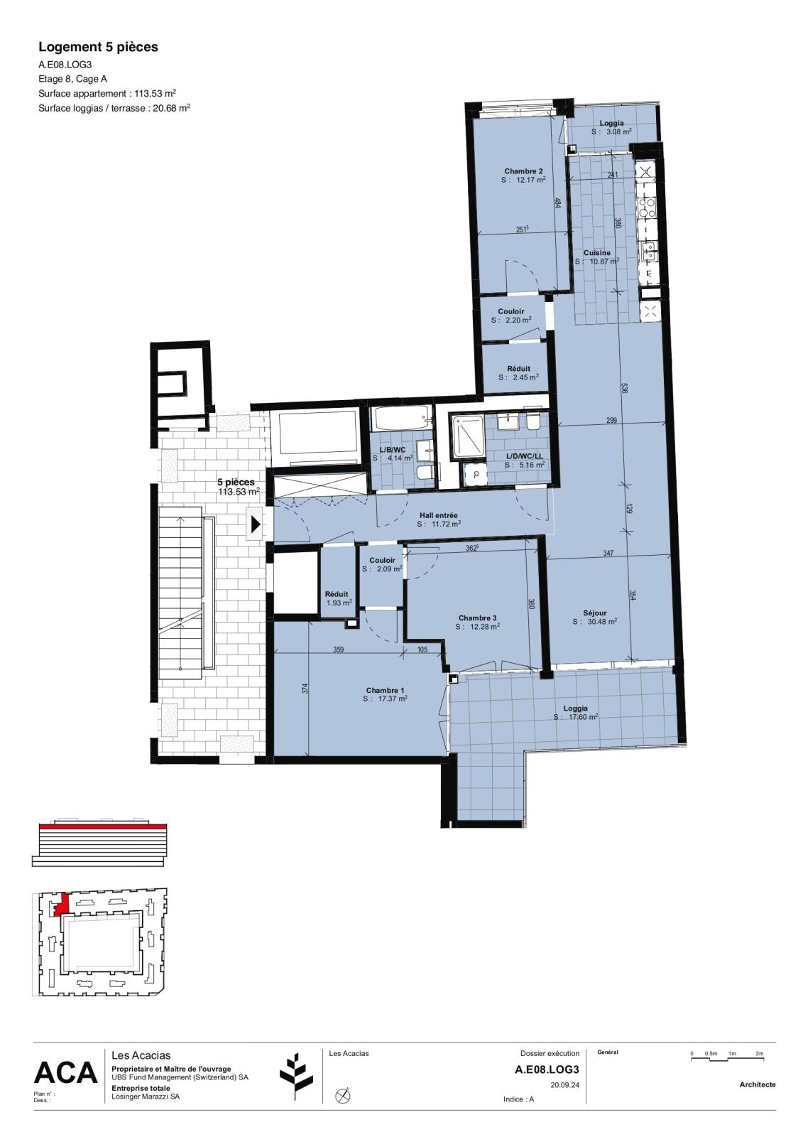
Réf A.E08.LOG3 Fiche du bien
5.0 pièces
3 chambres
114 m²
2 salles de bain
Loyer net : CHF 3'240.-
Charges : CHF 464.-
Les Acacias proposent 320 logements neufs à la location (typologies allant du 2 au 6 pièces), une cour intérieure calme et des surfaces commerciales au rez-de-chaussée.
Ce grand 5 pièces traversant est idéal pour les couples avec enfants. (Minimum 3 occupants)
Il se distribue comme suit :
• Hall d’entrée avec armoire encastrée
• Cuisine ouverte sur le séjour (agencée et équipée avec de l’électroménager Miele : réfrigérateur, congélateur, plaques à induction, four à chaleur tournante, hotte, lave-vaisselle) avec accès à une première loggia
• Séjour avec accès à une seconde et grande loggia
• 3 chambres à coucher avec accès à l’une des 2 loggias
• Salle de bains avec baignoire (pas de pare-bains ni de tringle), WC et lavabo
• Salle de douche avec douche (pas de cabine vitrée, mais tringle métallique), WC et lavabo + coin buanderie (attentes eau et électricité pour colonne de lavage)
• 2 réduits
Equipements :
• Parquet au sol dans le séjour et les chambres à coucher
• Carrelage au sol dans l’espace cuisine
• Carrelage au sol et faïences sur toute la hauteur des murs pour les salles d’eau
• Chauffage au sol (CAD) avec régulation dans les pièces
• Stores manuels
2 loggias (avec luminaire au plafond), ainsi qu’une cave (porte en bardage ajouré, sans luminaire, ni prise électrique) complètent les prestations de ce bien.
Chaque allée est pourvue d’une buanderie commune et d’un local poussettes. 9 locaux vélos sont situés en rez-de-chaussée, dont 1 destiné aux vélos-cargo, ainsi que 3 locaux vélos en sous-sol.
Appartements sur plan uniquement.
Retrouvez nos appartements 4, 5 et 6 pièces sur le site https://www.les-acacias.ch. En cas d'intérêt, nous contacter par mail uniquement : acacias@grrsa.ch
Images non contractuelles

Isabella
Giramma
isabella.giramma@grrsa.ch








